An der Hansastraße kann man noch die Stützpfeiler der ehemaligen Brücke sehen. Einst gab es hier einen Gleisbogen. Die Gleise liegen noch, aber entlang der ehemaligen Bahnstrecke wurden in den vergangenen Wochen etliche Bäume gefällt. Demnächst sollen hier eine Menge Neubauten und eine neue Straße entstehen. Das Projekt wurde am Montag im Stadtbezirksbeirat vorgestellt.

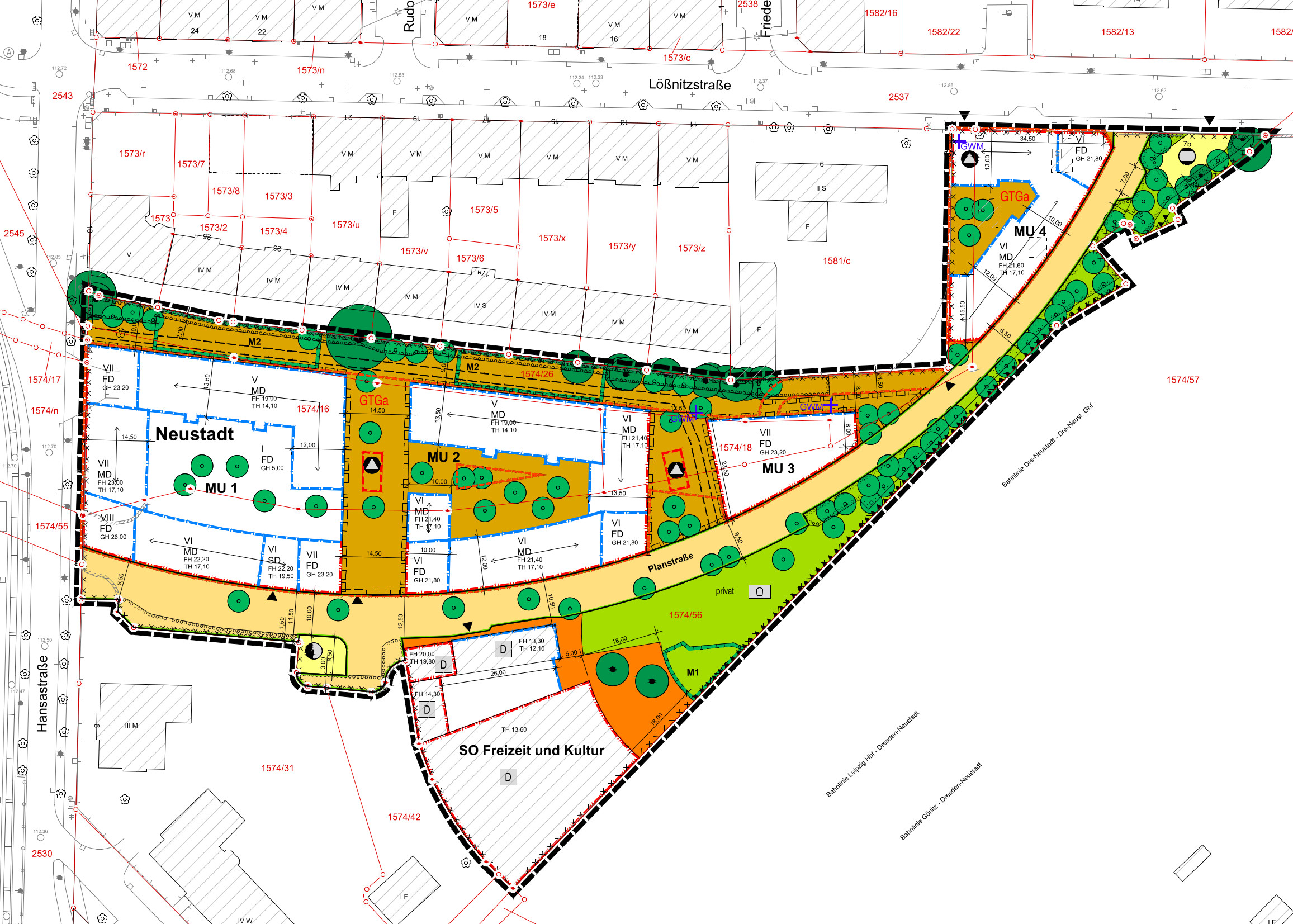
Der zugehörige Babuaungsplan mit der Nummer 3029 hat sich geändert. Während bisher auch noch die Flächen jenseits der Hansastraße, rund um das ehemalige Porsche-Autohaus Bestandteil waren, geht es jetzt nur noch um den Bereich zwischen Hansa- und Lößnitzstraße und den Bahngleisen. Hier sollen mehrere Blöcke mit Neubauten für Wohnen und Gewerbe entstehen und eine Straße, die von der Hansa- zur Lößnitzstraße führt. Außerdem ist der alte und denkmalgeschützte Lokschuppen der Bahn Bestandteil des Bebauungsplanes.

Für das Gelände gab es ein sogenanntes Werkstattverfahren mit mehreren Entwürfen, das Architekturbüro TSSB hat diesen Wettbewerb gewonnen und nach den Entwürfen wird nun das weitere Verfahren bestimmt. Gewissermaßen parallel zum alten Gleisbogen wird die neue Straße entstehen, die dann auf der Lößnitzstraße gegenüber dem Drewag-Gelände endet. Entlang dieser Straße sind auf der nördlichen Seite vier Neubaublöcke geplant. Die südliche Seite soll zum Bahndamm hin begrünt werden.

Die Architekten haben dem neuen Stadt-Viertel auch schon einen Namen gegeben „Bogenviertel“ – zum einen wegen des Gleisbogens, zum anderen weil die Gebäude durch viele Bögen geprägt werden sollen. Investor des Vorhabens ist die Delitzscher Immvest Wolf GmbH. Die Firma hofft nun, noch in diesem Jahr Baurecht zu bekommen, um im Frühjahr 2022 mit dem Bau beginnen zu können. Die Bauzeit wird mit voraussichtliche drei Jahren veranschlagt.
Während in dem an der Hansastraße angrenzenden Block vorwiegend gewerbliche Nutzung geplant ist, soll es in den anderen drei Blöcken nur im Erdgeschoss Gewerbe- oder Einzelhandel geben, in den oberen Etagen sollen Wohnungen entstehen. 15 Prozent davon sind als Sozialwohnungen geplant. Der rund 120 Jahre alte Lokschuppen soll sich zu einem Zentrum für das Quartier entwickeln.
In der Sitzung am Montag waren Vertreter des Sportvereins Motor Mickten anwesend, die ein Konzept für das denkmalgeschützte Haus als Sport- und Begegnungsstätte vorstellten.




Das Projekt wird öffentlich ausgelegt. Details sind unter dresden.de einsehbar.






















Und eine weitere Brache im Gebiet, die versiegelt wird. Schade. Gibt es denn in diesem Zug auch ein Konzept, die Lößnitzstraße etwas vom Verkehr zu entlasten? Der gesamte Fernbusverkehr von der Autobahn knattert hier durch.
Schade finde ich auch, dass sich anscheinend die Fußgängerbrücke aus dem Entwurf der Storch Landschaftsarchitekten nicht durchsetzen konnte. https://storch-la.de/?Projekte/Wohnen/Hansastrasse-Dresden
Von einem solchen Konzept war im Zusammenhang mit der Vorstellung des Baugebietes nicht die Rede. Und ja das Projekt der NBHG-Architekten, die mit den Storch-Landschaftsarchitekten zusammengearbeitet haben, hat nicht den Zuschlag erhalten. Eine Übersicht aller Teilnehmer am Werkstattverfahren gibt es auf dresden.de.
Fußgängerbrücken oder Tunnel haben es in der aktuellen Verkehrsplanung aber ohnehin ziemlich schwer.
Zwischen der Lößnitzstraße in der Neustadt und der Gothaer Straße in Pieschen sieht das Radverkehrskonzept eigentlich eine Verbindung (logisch wäre: auf dem alten Bahndamm) vor (RVK Maßnahme 736).
Da die Verbindung zwischen Pieschen und der Neustadt ja nicht so super-durchlässig und supercomfy ist, wäre das Projekt wirklich sehr spannend. Ist dazu im SBR was gesagt worden?
Falls nein: Könntest du mal beim Stadtplanungsamt oder beim Stadtbezirksamt nachfragen, was da geplant ist? Ich sehe jedenfalls in derVisualisierung keine Radbrücke über die Hansastraße.
Die Planung von TSSB sieht eine Einbahnstraßenregelung der neuen Straße von der Lößnitzstraße zur Hansastraße vor,
Das würde zumindest den Verkehr vor der Freifläche vor dem Lokschuppen minimieren.
Und im Verlauf des Gleisbogen über die Hansastraße ist zumindest im Plan ein Fußgängerüberweg (oder Ampel?) geplant.
Eine Brücke an der Stelle müsste die Oberleitung der Straßenbahn überspannen, d.h. die Brücke müsste mindestens die Höhe der ehemaligen Fußgängerbrücke an der Albertstraße haben.
Damit sie dann auch für Radfahrer und Rollstuhlfahrer nutzbar wäre, würden die Brückenrampen an den Fenstern des 1.Stock der Wohnhäuser vorbeigehen, was auch auf den Plänen von NBHG zu sehen ist.
Wenn man sich alle Entwürfe ansieht, dann ist die Entscheidung für TSSB schon schlüssig.
@Anton Launer – danke für den ausführlichen Bericht. Wurde denn anhand weiterer Planzeichnungen deutlich, ob die bestehende Baumreihe parallel zu den Hinterhäusern der Lößnitzstraße erhalten bleibt? Ich hatte bereits vor 1 1/2 Jahren in einem Schreiben ans Stadtplanungsamt angemerkt, dass die (damaligen) Entwürfe zwar weiterhin eine hübsche Baumreihe zur Lößnitzstraße hin zeigen, aber der Abstand zwischen den geplanten und den bestehenden Häusern zu klein wäre, um die alten Bäume tatsächlich zu erhalten. Man könnte das fast als „Greenwashing“ bezeichnen… Außer einer Eingangsbestätigung habe ich vom damaligen so genannten „Beteiligungsverfahren“ nie wieder etwas gehört.
Hallo Jens, wenn ich mir den Plan ansehe, dann denke ich, dass der aktuelle „Wald“ wohl auf jeden Fall schrumpfen wird. Der Investor wird übrigens beauflagt, Ersatzpflanzungen vorzunehmen.